Formula Room

FORM

Revision: 
2.0
Date published: 
01/03/2016

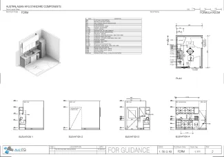
The Formula Room provides space for the preparation, distribution and storage of baby feeds. Pre-packaged feeds will also be stored in this area. The room will provide facilities for washing, sterilisation and storage of baby bottles, teats and equipment, preparation of baby formulas, refrigerated storage of baby feeds and demonstration of formula preparation to mothers.
 

This Standard Component has been redocumented. During the process, the content has undergone a quality assurance process. The overall changes are minor in nature and do not represent a significant revision.

Room Data Sheet

Downloads
Room Data Sheet
Revision: 2.0
01/03/2016
PDF

Room Layout Sheet

Downloads
Room Layout Sheet
Revision: 2.0
01/03/2016
PDF

Project Resources

 

Archive

Find past versions of documents here

Downloads
Room Data Sheet
Revision: 2.0
01/03/2016
PDF
Room Layout Sheet
Revision: 2.0
01/03/2016
pdf
Room Data Sheet
Revision: 1.0
04/08/2005
PDF
Room Layout Sheet
Revision: 1.0
01/07/2005
pdf

Retired Standard Components

Retired Standard Components

Webpage