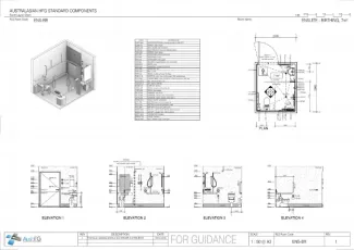
Ensuite - Birthing, 7m2
ENS-BR
Revision:
1
Date published:
05/04/2018
An Ensuite - Birthing Room is for the mother to wash, shower and use the toilet, either independently or with assistance.
Room Data Sheet
Room Layout Sheet
Downloads

Archive
Find past versions of documents here
Retired Standard Components
Retired Standard Components