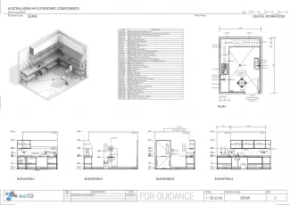
Dental Workroom

DENW

Revision: 
3.0
Date published: 
24/03/2017

The Dental Workroom provides facilities and equipment for dental technicians to make adjustments to dentures or other dental prosthetics and to store prosthetic supplies.
 

This Standard Component has been redocumented. During the process, the content has undergone a quality assurance process. The overall changes are minor in nature and do not represent a significant revision.

Room Data Sheet

Downloads
Room Data Sheet
Revision: 3.0
20/03/2017
PDF

Room Layout Sheet

Downloads
Room Layout Sheet
Revision: 3.0
20/03/2017
PDF

Project Resources

 

Archive

Find past versions of documents here

Downloads
Room Data Sheet
Revision: 3.0
20/03/2017
PDF
Room Layout Sheet
Revision: 3.0
20/03/2017
pdf
Room Data Sheet
Revision: 2.0
01/03/2016
PDF
Room Layout Sheet
Revision: 2.0
01/03/2016
pdf
Room Data Sheet
Revision: 1.0
08/06/2007
PDF
Room Layout Sheet
Revision: 1.0
13/07/2005
pdf

Retired Standard Components

Retired Standard Components

Webpage