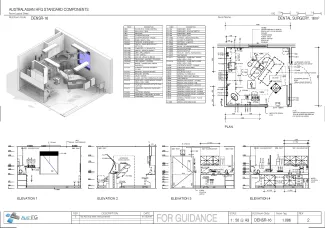
Dental Surgery, 16m2

DENSR-16

Revision: 
2.0
Date published: 
01/03/2016

The Dental Surgery provides for dental consultation, examination and treatment for patients. An external outlook is desirable. The 16m2 room provides for access by patient trolleys as required.
 

This Standard Component has been redocumented. During the process, the content has undergone a quality assurance process. The overall changes are minor in nature and do not represent a significant revision.

Room Data Sheet

Downloads
Room Data Sheet
Revision: 2.0
01/03/2016
PDF

Room Layout Sheet

Downloads
Room Layout Sheet
Revision: 2.0
01/03/2016
PDF

Project Resources

 

Archive

Find past versions of documents here

Downloads
Room Data Sheet
Revision: 2.0
01/03/2016
PDF
Room Layout Sheet
Revision: 2.0
01/03/2016
pdf
Room Data Sheet
Revision: 1.0
08/06/2007
PDF
Room Layout Sheet
Revision: 4.0
08/06/2007
pdf

Retired Standard Components

Retired Standard Components

Webpage