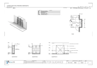
Bay - Storage (Enclosed), 1m2

BSE-1

Revision: 
3.0
Date published: 
01/03/2016

A secure enclosed storage bay, located off a corridor, for storage of supplies. The storage bay will include adjustable heavy duty shelving.

This Standard Component has been redocumented. During the process, the content has undergone a quality assurance process. The overall changes are minor in nature and do not represent a significant revision.

Room Data Sheet

Downloads
Room Data Sheet
Revision: 4.0
01/03/2016
PDF

Room Layout Sheet

Downloads
Room Layout Sheet, Option 1
Revision: 3.0
01/03/2016
PDF

Project Resources

 

Archive

Find past versions of documents here

Downloads
Room Data Sheet
Revision: 4.0
01/03/2016
PDF
Room Layout Sheet, Option 1
Revision: 3.0
01/03/2016
pdf
Room Data Sheet
Revision: 3.0
01/04/2009
PDF
Room Layout Sheet
Revision: 2.0
10/12/2008
pdf

Retired Standard Components

Retired Standard Components

Webpage