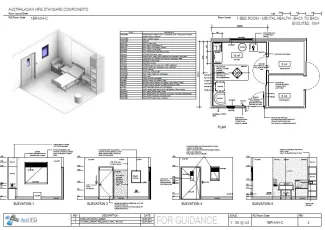
1 Bed Room - Mental Health - Back to Back Ensuite, 15m2
1BR-MH-C
Date published:
04/07/2018
A single bed room to be used to accommodate patients within a mental health unit. The 1 Bed Room - Mental Health may vary in configuration to suit different ensuite options and this room includes a back to back ensuite.
This Standard Component is under review.
Room Data Sheet
Room Layout Sheet
Downloads

Archive
Find past versions of documents here
Retired Standard Components
Retired Standard Components