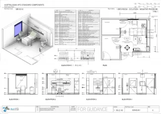
1 Bed Room - Isolation, Negative Pressure, Type 1

1BR-IS-N1

Revision: 
4.0
Date published: 
05/04/2018

A 1 Bed Room - Isolation (Negative Pressure) will accommodate one patient requiring respiratory isolation to prevent the transmittion of infection.

Room Data Sheet

Downloads
Room Data Sheet
Revision: 4.0
05/04/2018
PDF

Room Layout Sheet

Downloads
Room Layout Sheet
Revision: 4.0
05/04/2018
PDF

Project Resources

 

Archive

Find past versions of documents here

Downloads
Room Data Sheet
Revision: 3.0
20/03/2017
PDF
Room Layout Sheet
Revision: 3.0
16/05/2005
pdf
Room Data Sheet
Revision: 2.0
20/05/2005
PDF

Retired Standard Components

Retired Standard Components

Webpage