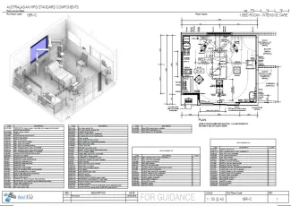
1 Bed Room - Intensive Care

1BR-ICU

Revision: 
2.0
Date published: 
13/11/2025

The 1 Bed Room - Intensive Care provides an acuity adaptable, enclosed room for a patient requiring intensive medical treatment,
nursing care and monitoring for potentially life threatening conditions.

Room Data Sheet

Downloads
Room Data Sheet
Revision: 2.0
13/11/2025
PDF

Room Layout Sheet

Downloads
Room Layout Sheet
Revision: 2.0
13/11/2025
PDF

Project Resources

 

Archive

Find past versions of documents here

Downloads
Room Data Sheet
Revision: 1.0
29/05/2019
PDF
Room Layout Sheet
Revision: 1.0
29/05/2019
pdf

Retired Standard Components

Retired Standard Components

Webpage