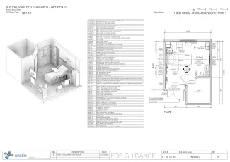
1 Bed Room - Inboard Ensuite, Type 1

1BR-IN1

Revision: 
6.0
Date published: 
15/12/2025

The 1-Bed Room - Inboard Ensuite, Type 1 provides space and amenities for accommodating one patient and supporting the
delivery of clinical care and treatment.

Room Data Sheet

Downloads
Room Data Sheet
Revision: 6.0
15/12/2025
PDF

Room Layout Sheet

Downloads
Room Layout Sheet
Revision: 6.0
15/12/2025
PDF

Project Resources

 

Archive

Find past versions of documents here

Downloads
Room Data Sheet
Revision: 5.0
05/04/2018
PDF
Room Layout Sheet
Revision: 5.0
05/04/2018
pdf
Room Data Sheet
Revision: 4.0
22/06/2017
PDF
Room Layout Sheet
Revision: 4.0
16/05/2005
pdf
Room Data Sheet
Revision: 2.0
10/06/2005
PDF

Retired Standard Components

Retired Standard Components

Webpage