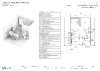
1 Bed Room - Carer Overnight, Outboard Ensuite, Type 1

1BR-CO-OU1

Revision: 
1.0
Date published: 
15/12/2025

The 1-Bed Room - Carer Overnight, Outboard Ensuite, Type 1 provides space and amenities for accommodating one patient, as well
as one carer/family member to stay overnight, and supporting the delivery of clinical care and treatment.

Room Data Sheet

Downloads
Room Data Sheet
Revision: 1.0
15/12/2025
PDF

Room Layout Sheet

Downloads
Room Layout Sheet
Revision: 1.0
15/12/2025
PDF

Project Resources

 

Archive

Find past versions of documents here

Downloads

Retired Standard Components

Retired Standard Components

Webpage