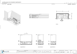
Waiting - Sub, 5m2

WAIT-SUB

Revision: 
2.0
Date published: 
01/03/2016

A satellite area for visitors, families and patients to wait, located within departmental units or Offices. This area should accommodate parking space for wheelchairs as required.

This Standard Component has been redocumented. During the process, the content has undergone a quality assurance process. The overall changes are minor in nature and do not represent a significant revision.

Room Data Sheet

Downloads
Room Data Sheet
Revision: 4.0
01/03/2016
PDF

Room Layout Sheet

Downloads
Room Layout Sheet
Revision: 2.0
01/03/2016
PDF

Project Resources

 

Archive

Find past versions of documents here

Downloads
Room Data Sheet
Revision: 5.0
20/03/2017
PDF
Room Layout Sheet
Revision: 3.0
20/03/2017
pdf
Room Data Sheet
Revision: 4.0
01/03/2016
PDF
Room Layout Sheet
Revision: 2.0
01/03/2016
pdf
Room Data Sheet
Revision: 3.0
27/03/2009
PDF
Room Layout Sheet
Revision: 1.0
21/07/2005
pdf

Retired Standard Components

Retired Standard Components

Webpage