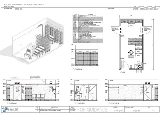
Store - Sterile Stock, 20m2

STSS-20

Revision: 
4.0
Date published: 
04/07/2018

A room with an aseptic environment for storage and holding of sterile stock for use in the Operating Suite or other acute treatment areas.

Room Data Sheet

Downloads
Room Data Sheet
Revision: 4.0
04/07/2018
PDF

Room Layout Sheet

Downloads
Room Layout Sheet
Revision: 5.0
04/07/2018
PDF

Project Resources

 

Archive

Find past versions of documents here

Downloads
Room Data Sheet
Revision: 4.0
04/07/2018
PDF
Room Layout Sheet
Revision: 5.0
04/07/2018
pdf

Retired Standard Components

Retired Standard Components

Webpage