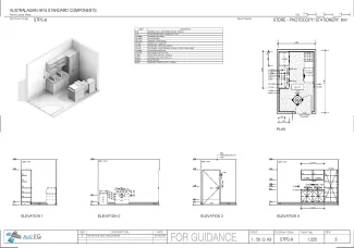
Store - Photocopy/ Stationery, 8m2

STPS-8

Revision: 
3.0
Date published: 
01/03/2016

A secure room for the storage of office stationery and for use of a document centre for photocopying, printing and scanning.

This Standard Component has been redocumented. During the process, the content has undergone a quality assurance process. The overall changes are minor in nature and do not represent a significant revision.

Room Data Sheet

Downloads
Room Data Sheet
Revision: 4.0
01/03/2016
PDF

Room Layout Sheet

Downloads
Room Layout Sheet
Revision: 3.0
01/03/2016
PDF

Project Resources

 

Archive

Find past versions of documents here

Downloads
Room Data Sheet
Revision: 4.0
01/03/2016
PDF
Room Layout Sheet
Revision: 3.0
01/03/2016
pdf
Room Data Sheet
Revision: 3.0
27/03/2009
PDF
Room Layout Sheet
Revision: 1.0
14/08/2008
pdf

Retired Standard Components

Retired Standard Components

Webpage