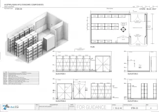
Store - Bulk, 20m2

STBK-20

Revision: 
4.0
Date published: 
27/03/2017

The bulk store is the primary storage area for all delivered supplies and stores prior to distribution to hospital Units when requisioned or on an imprest supply system. The area requires security and controlled access. The bulk store should be located with ready access to the loading dock area.

This Standard Component has been redocumented. During the process, the content has undergone a quality assurance process. The overall changes are minor in nature and do not represent a significant revision.

Room Data Sheet

Downloads
Room Data Sheet
Revision: 3.0
20/03/2017
PDF

Room Layout Sheet

Downloads
Room Layout Sheet
Revision: 4.0
20/03/2017
PDF

Project Resources

 

Archive

Find past versions of documents here

Downloads
Room Data Sheet
Revision: 3.0
20/03/2017
PDF
Room Layout Sheet
Revision: 4.0
20/03/2017
pdf
Room Data Sheet
Revision: 2.0
01/03/2016
PDF
Room Layout Sheet
Revision: 3.0
01/03/2016
pdf
Room Data Sheet
Revision: 1.0
11/05/2006
PDF
Room Layout Sheet
Revision: 2.0
26/04/2006
pdf

Retired Standard Components

Retired Standard Components

Webpage