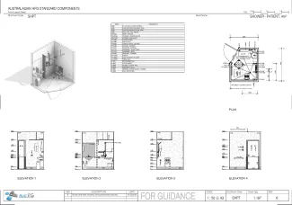
Shower - Patient, 4m2

SHPT

Revision: 
6.0
Date published: 
01/03/2016

The patient shower is a room containing a shower and a handbasin for patients to shower or wash, either independently or with nurse assistance. This room may be provided in an emergency department or other units where an additional shower is required.

This Standard Component has been reviewed, redocumented and reissued. These changes include findings from recent projects and post occupancy evaluations. In most cases, the changes are significant.

Room Data Sheet

Downloads
Room Data Sheet
Revision: 4.0
01/03/2016
PDF

Room Layout Sheet

Downloads
Room Layout Sheet
Revision: 6.0
01/03/2016
PDF

Project Resources

 

Archive

Find past versions of documents here

Downloads
Room Data Sheet
Revision: 5.0
20/03/2017
PDF
Room Layout Sheet
Revision: 7.0
20/03/2017
pdf
Room Data Sheet
Revision: 4.0
01/03/2016
PDF
Room Layout Sheet
Revision: 6.0
01/03/2016
pdf
Room Data Sheet
Revision: 3.0
26/03/2009
PDF
Room Layout Sheet
Revision: 5.0
13/03/2009
pdf

Retired Standard Components

Retired Standard Components

Webpage