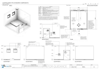
Seclusion Room

SECL

Revision: 
6.0
Date published: 
21/08/2025

A Seclusion Room provides for the sole confinement of a distressed or agitated person requiring separation for short periods at any hour of the day or night on an involuntary basis.

Room Data Sheet

Downloads
Room Data Sheet
Revision: 6.0
21/08/2025
PDF

Room Layout Sheet

Downloads
Room Layout Sheet
Revision: 6.0
21/08/2025
PDF

Project Resources

 

Archive

Find past versions of documents here

Downloads
Room Data Sheet
Revision: 5.0
04/07/2018
PDF
Room Layout Sheet
Revision: 5.0
04/07/2018
pdf
Room Data Sheet
Revision: 4.0
20/03/2017
PDF
Room Layout Sheet
Revision: 4.0
20/03/2017
pdf
Room Data Sheet
Revision: 3.0
01/03/2016
PDF
Room Layout Sheet
Revision: 3.0
01/03/2016
pdf
Room Data Sheet
Revision: 2.0
10/06/2005
PDF
Room Layout Sheet
Revision: 2.0
10/06/2005
pdf

Retired Standard Components

Retired Standard Components

Webpage