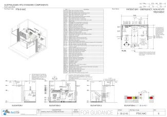
Patient Bay - Emergency, Non Acute Treatment

PTB-E-NAC

Revision: 
6.0
Date published: 
18/08/2025

The Patient Bay - Emergency, Non Acute Treatment provides the space and facilities for assessment, treatment and observation of patients with non acute conditions and injuries requiring a short episode of care (less than 24 hours) within the Emergency Unit.

Room Data Sheet

Downloads
Room Data Sheet
Revision: 6.0
18/08/2025
PDF

Room Layout Sheet

Downloads
Room Layout Sheet
Revision: 6.0
18/08/2025
PDF

Project Resources

 

Archive

Find past versions of documents here

Downloads
Room Data Sheet
Revision: 5.0
29/05/2019
PDF
Room Layout Sheet
Revision: 5.0
29/05/2019
pdf
Room Data Sheet
Revision: 4.0
20/03/2017
PDF
Room Layout Sheet
Revision: 4.0
20/03/2017
pdf
Room Data Sheet
Revision: 3.0
01/03/2016
PDF
Room Layout Sheet
Revision: 3.0
01/03/2016
pdf
Room Data Sheet
Revision: 2.0
10/06/2005
PDF
Room Layout Sheet
Revision: 2.0
10/06/2005
pdf

Retired Standard Components

Retired Standard Components

Webpage