OPG Room

OPG

Revision: 
2.0
Date published: 
16/05/2025

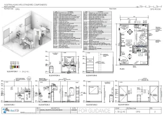
The OPG Room provides the space and equipment for diagnostic orthopantomogram x-ray imaging which produces panoramic xrays of the jaw.  This Standard Component may be located within a Dental/Oral Health Unit or Medical Imaging Unit.

Room Data Sheet

Downloads
Room Data Sheet
Revision: 2.0
16/05/2025
PDF

Room Layout Sheet

Downloads
Room Layout Sheet
Revision: 2.0
16/05/2025
PDF

Project Resources

 

Archive

Find past versions of documents here

Downloads
Room Data Sheet
Revision: 1.0
29/05/2019
PDF
Room Layout Sheet
Revision: 1.0
29/05/2019
pdf

Retired Standard Components

Retired Standard Components

Webpage