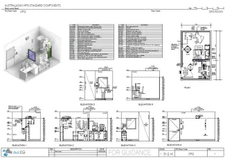
OPG Room

OPG

Revision: 
1.0
Date published: 
29/05/2019

OPG is a room for undertaking orthopantomogram procedures which involve panoramic x-ray of the jaw area in dental examinations.

Room Data Sheet

Downloads
Room Data Sheet
Revision: 1.0
29/05/2019
PDF

Room Layout Sheet

Downloads
Room Layout Sheet
Revision: 1.0
29/05/2019
PDF

Project Resources

 

Archive

Find past versions of documents here

Downloads
Room Data Sheet
Revision: 1.0
29/05/2019
PDF
Room Layout Sheet
Revision: 1.0
29/05/2019
pdf

Retired Standard Components

Retired Standard Components

Webpage