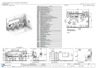
MRI Control Room

MRI-CTRL

Revision: 
2.0
Date published: 
15/05/2025

The MRI Control Room provides the space and equipment for remote control of MRI equipment, and the amenities for review
of images and reporting. Direct visibility of the patient through an observation window and direct access to the imaging room is
required.

Room Data Sheet

Downloads
Room Data Sheet
Revision: 2.0
15/05/2025
PDF

Room Layout Sheet

Downloads
Room Layout Sheet
Revision: 2.0
15/05/2025
PDF

Project Resources

 

Archive

Find past versions of documents here

Downloads
Room Data Sheet
Revision: 1.0
29/05/2019
PDF
Room Layout Sheet
Revision: 1.0
29/05/2019
pdf

Retired Standard Components

Retired Standard Components

Webpage