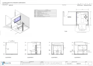
Mortuary - Viewing Room

MOR-VR

Revision: 
3.0
Date published: 
22/03/2017

The Viewing Room is provided for bodies to be viewed by relatives/ friends. Bodies may be viewed through a window and optional access may be provided for relatives to directly view bodies. The Viewing Room will be located adjacent to the mortuary waiting area.

This Standard Component has been redocumented. During the process, the content has undergone a quality assurance process. The overall changes are minor in nature and do not represent a significant revision.

Room Data Sheet

Downloads
ROOM DATA SHEET
Revision: 4.0
20/03/2017
PDF

Room Layout Sheet

Downloads
ROOM LAYOUT SHEET
Revision: 3.0
20/03/2017
PDF

Project Resources

 

Archive

Find past versions of documents here

Downloads
ROOM DATA SHEET
Revision: 4.0
20/03/2017
PDF
ROOM LAYOUT SHEET
Revision: 3.0
20/03/2017
pdf
Room Data Sheet
Revision: 3.0
01/03/2016
PDF
Room Layout Sheet
Revision: 2.0
01/03/2016
pdf
Room Data Sheet
Revision: 2.0
23/05/2006
PDF
Room Layout Sheet
Revision: 2.0
23/05/2006
pdf

Retired Standard Components

Retired Standard Components

Webpage