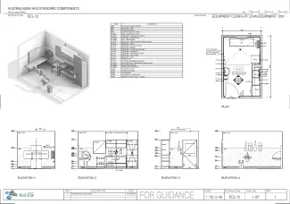
Equipment Clean-up / Loan Equipment, 12m2

ECL-12

Revision: 
2.0
Date published: 
28/03/2017

This room is used to clean and store equipment used in patient care, or loaned to outpatients.

This Standard Component has been reviewed, redocumented and reissued. These changes include findings from recent projects and post occupancy evaluations. In most cases, the changes are significant.

Room Data Sheet

Downloads
Room Data Sheet
Revision: 5.0
20/03/2017
PDF

Room Layout Sheet

Downloads
Room Layout Sheet
Revision: 2.0
20/03/2017
PDF

Project Resources

 

Archive

Find past versions of documents here

Downloads
Room Data Sheet
Revision: 4.0
01/03/2016
PDF
Room Layout Sheet
Revision: 1.0
01/03/2016
pdf
Room Data Sheet
Revision: 3.0
01/04/2009
PDF
Room Layout Sheet
Revision: 2.0
10/12/2008
pdf

Retired Standard Components

Retired Standard Components

Webpage