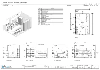
Equipment Clean-Up, 14m2

ECL-14

Revision: 
4.0
Date published: 
28/03/2017

The Equipment Clean-Up room is used for cleaning and maintaining of equipment used in a Unit. Storage may be required for holding cleaned equipment and spares. 

This Standard Component has been redocumented. During the process, the content has undergone a quality assurance process. The overall changes are minor in nature and do not represent a significant revision.

Room Data Sheet

Downloads
Room Data Sheet
Revision: 5.0
20/03/2017
PDF

Room Layout Sheet

Downloads
Room Layout Sheet
Revision: 4.0
20/03/2017
PDF

Project Resources

 

Archive

Find past versions of documents here

Downloads
Room Data Sheet
Revision: 4.0
01/03/2016
PDF
Room Layout Sheet
Revision: 3.0
01/03/2016
pdf
Room Data Sheet
Revision: 3.0
01/04/2009
PDF
Room Layout Sheet
Revision: 2.0
10/12/2008
pdf

Retired Standard Components

Retired Standard Components

Webpage