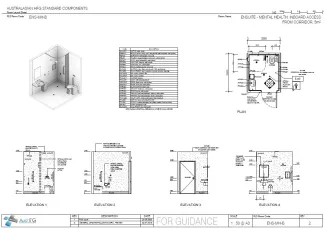
Ensuite - Mental Health - Inboard Access from Corridor, 5m2

ENS-MH-B

Revision: 
2.0
Date published: 
29/03/2017

The Ensuite - Mental Health will provide a shower, toilet and hand basin for use by patients in a mental health inpatient unit.

This Standard Component is under review.

Room Data Sheet

Downloads
Room Data Sheet
Revision: 3.0
04/07/2018
PDF

Room Layout Sheet

Downloads
Room Layout Sheet
Revision: 2.0
04/07/2018
PDF

Project Resources

 

Archive

Find past versions of documents here

Downloads
Room Data Sheet
Revision: 3.0
04/07/2018
PDF
Room Layout Sheet
Revision: 2.0
04/07/2018
pdf
Room Data Sheet
Revision: 2.0
20/03/2017
PDF
Room Layout Sheet
Revision: 1.0
23/05/2005
pdf
Ensuite - Mental Health - Inboard
Revision: 1.0
07/06/2005
PDF

Retired Standard Components

Retired Standard Components

Webpage