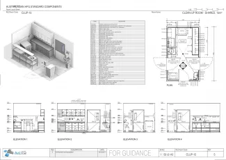
Clean-up Room - Shared, 15m2 (RETIRED)

CLUP-15

Revision: 
5.0
Date published: 
24/03/2017

This standard component has been retired.

This standard component has been retired.

Room Data Sheet

Downloads
Room Data Sheet
Revision: 4.0
20/03/2017
PDF

Room Layout Sheet

Downloads
Room Layout Sheet
Revision: 5.0
20/03/2017
PDF

Project Resources

 

Archive

Find past versions of documents here

Downloads
Room Data Sheet
Revision: 3.0
01/03/2016
PDF
Room Layout Sheet
Revision: 4.0
01/03/2016
pdf
Room Data Sheet
Revision: 2.0
20/05/2005
PDF
Room Layout Sheet
Revision: 3.0
19/05/2005
pdf

Retired Standard Components

Retired Standard Components

Webpage