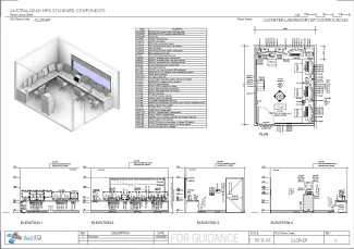
Catheter Laboratory EP Control Room

CLCR-EP

Revision: 
1.0
Date published: 
13/05/2020

Room adjacent to Catheter Lab EP Procedure Room/s with direct visibility to the patient for remote control of equipment, and review and reporting of images.

Room Data Sheet

Downloads
Room Data Sheet
Revision: 1.0
13/05/2020
PDF

Room Layout Sheet

Downloads
Room Layout Sheet
Revision: 1.0
13/05/2020
PDF

Project Resources

 

Archive

Find past versions of documents here

Downloads

Retired Standard Components

Retired Standard Components

Webpage