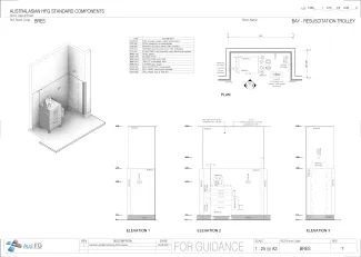
Bay - Resuscitation Trolley

BRES

Revision: 
6.0
Date published: 
29/06/2021

A open bay to provide supervised holding of the resuscitation trolley and associated equipment.

The bay should be located close to a Staff Station. Rapid access to the trolley and from this bay to patient areas is essential.

Additional Design Considerations:

  • Requirements for specialised resuscitation trolleys should be considered (e.g. specific trolleys are required for paediatric and neonatal departments and non-magnetic trolleys are required for some medical imaging modalities).
  • If a department requires more than one type of resuscitation trolley to be accommodated in their bay (e.g. both adult and paediatric trolleys) additional area will be required.
  • Additional equipment, such as ECG machines, may be accommodated in this bay in some departments.
  • The bay shall be a minimum depth of 800mm to ensure that equipment does not impede adjacent corridor circulation.
  • A patient slide may need to be readily available if the resuscitation trolley is required and may be provided within this bay.

Room Data Sheet

Downloads
Room Data Sheet
Revision: 6.0
29/06/2021
PDF

Room Layout Sheet

Downloads
Room Layout Sheet
Revision: 7.0
29/06/2021
PDF

Project Resources

 

Archive

Find past versions of documents here

Downloads
Room Data Sheet
Revision: 5.0
20/03/2017
PDF
Room Layout Sheet
Revision: 6.0
20/03/2017
pdf
Room Data Sheet
Revision: 4.0
01/03/2016
PDF
Room Layout Sheet
Revision: 5.0
01/03/2016
pdf
Room Data Sheet
Revision: 3.0
01/04/2009
PDF
Room Layout Sheet
Revision: 4.0
10/12/2008
pdf

Retired Standard Components

Retired Standard Components

Webpage