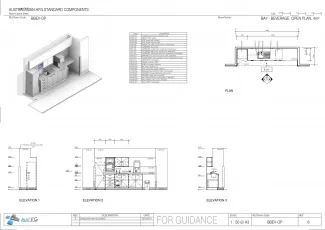
Bay - Beverage, Open Plan, 4m2

BBEV-OP

Revision: 
6.0
Date published: 
28/03/2017

The beverage bay is an area for preparing and/or heating refreshments, snacks and meals, washing utensils, storing food and drinks and disposing of food waste  in a patient care environment. The Beverage Bay should be adequately recessed to avoid encroachment into the corridor.
 

This Standard Component has been reviewed, redocumented and reissued. These changes include findings from recent projects and post occupancy evaluations. In most cases, the changes are significant.

Room Data Sheet

Downloads
Room Data Sheet
Revision: 5.0
20/03/2017
PDF

Room Layout Sheet

Downloads
Room Layout Sheet
Revision: 6.0
20/03/2017
PDF

Project Resources

 

Archive

Find past versions of documents here

Downloads
Room Data Sheet
Revision: 5.0
20/03/2017
PDF
Room Layout Sheet
Revision: 6.0
20/03/2017
pdf
Room Data Sheet
Revision: 4.0
01/03/2016
PDF
Room Layout Sheet
Revision: 5.0
01/03/2016
pdf
Room Data Sheet
Revision: 3.0
01/04/2009
PDF
Room Layout Sheet
Revision: 4.0
10/12/2008
pdf

Retired Standard Components

Retired Standard Components

Webpage