ADL Kitchen - Enclosed (RETIRED)

ADLK-ENC

Revision: 
3.0
Date published: 
23/03/2017

This Standard Component has been retired. 

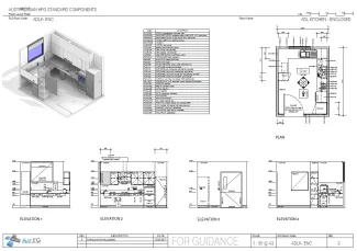
Room Data Sheet

Downloads
Room Data Sheet
Revision: 3.0
20/03/2017
PDF

Room Layout Sheet

Downloads
Room Layout Sheet
Revision: 3.0
20/03/2017
PDF

Project Resources

 

Archive

Find past versions of documents here

Downloads
Room Data Sheet
Revision: 2.0
01/03/2016
PDF
Room Layout Sheet
Revision: 2.0
01/03/2016
pdf
Room Data Sheet
Revision: 1.0
04/08/2005
PDF
Room Layout Sheet
Revision: 1.0
01/07/2005
pdf

Retired Standard Components

Retired Standard Components

Webpage