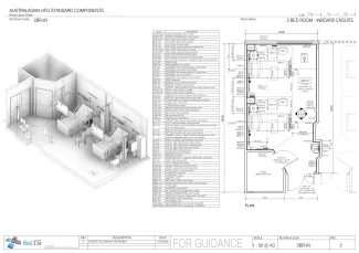
2 Bed Room - Inboard Ensuite

2BR-IN

Revision: 
2.0
Date published: 
15/12/2025

The 2-Bed Room - Inboard Ensuite provides space and amenities for accommodating two patients and supporting the delivery of
clinical care and treatment.

Room Data Sheet

Downloads
Room Data Sheet
Revision: 2.0
15/12/2025
PDF

Room Layout Sheet

Downloads
Room Layout Sheet
Revision: 2.0
15/12/2025
PDF

Project Resources

 

Archive

Find past versions of documents here

Downloads
Room Data Sheet
Revision: 1
05/04/2018
PDF
Room Layout Sheet
Revision: 1
05/04/2018
pdf

Retired Standard Components

Retired Standard Components

Webpage