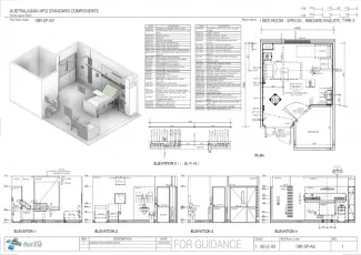
1 Bed Room - Special, Inboard Ensuite, Type 2

1BR-SP-A2

Revision: 
1.0
Date published: 
05/04/2018

A 1 Bed Room - Special will accommodate one patient for the delivery of a range of clinical care and treatment. It will typically be provided in maternity, paediatric and palliative care inpatient units.

Room Data Sheet

Downloads
Room Data Sheet
Revision: 1.0
05/04/2018
PDF

Room Layout Sheet

Downloads
Room Layout Sheet
Revision: 1.0
05/04/2018
PDF

Project Resources

 

Archive

Find past versions of documents here

Downloads

Retired Standard Components

Retired Standard Components

Webpage