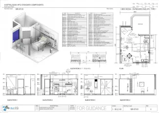
1 Bed Room - Outboard Ensuite, Type 1
1BR-ST-B1
Date published:
05/04/2018
A 1 Bed Room will accommodate one patient for the delivery of a range of clinical care and treatment.
Room Data Sheet
Room Layout Sheet
Downloads

Archive
Find past versions of documents here
Retired Standard Components
Retired Standard Components