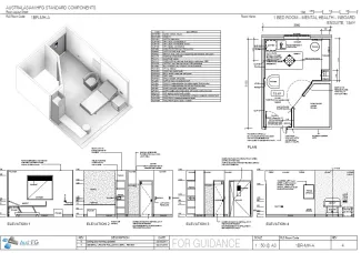
1 Bed Room - Mental Health - Inboard Ensuite, 15m2

1BR-MH-A

Date published: 
22/03/2017

A single bed room to be used to accommodate patients within a mental health unit. The 1 Bed Room - Mental Health may vary in configuration to suit different ensuite options and this room includes an inboard ensuite.

This Standard Component has been redocumented. During the process, the content has undergone a quality assurance process. The overall changes are minor in nature and do not represent a significant revision.

Room Data Sheet

Downloads
Room Data Sheet
Revision: 5.0
04/07/2018
PDF

Room Layout Sheet

Downloads
Room Layout Sheet
Revision: 4.0
04/07/2018
PDF

Project Resources

 

Archive

Find past versions of documents here

Downloads
Room Data Sheet
Revision: 5.0
04/07/2018
PDF
Room Layout Sheet
Revision: 4.0
04/07/2018
pdf
ROOM DATA SHEET
Revision: 4.0
20/03/2017
PDF
ROOM LAYOUT SHEET
Revision: 3.0
20/03/2017
pdf
Room Data Sheet
Revision: 3.0
01/03/2016
PDF
Room Layout Sheet
Revision: 2.0
01/03/2016
pdf
1 Bed Room - Mental Health
Revision: 2.0
10/06/2015
PDF
1 Bed Room - Mental Health - Inoard Ensuite
Revision: 1.0
03/06/2005
pdf

Retired Standard Components

Retired Standard Components

Webpage