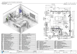
General X-Ray / OPG Room
XRAY-OPG
Revision:
1.0
Date published:
16/05/2025
The combined General X-ray and OPG Room provides the space and equipment for undertaking general radiographic imaging and orthopantomogram (OPG) imaging.
Room Data Sheet
Room Layout Sheet
Downloads

Retired Standard Components
Retired Standard Components