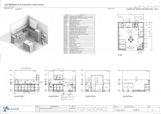
Clean-up Room (Pathology), 12m2 (RETIRED)

CLUP-P

Revision: 
3.0
Date published: 
28/03/2017

This Standard Component has been retired.

This Standard Component has been retired.

Room Data Sheet

Downloads
Room Data Sheet
Revision: 3.0
20/03/2017
PDF

Room Layout Sheet

Downloads
Room Layout Sheet
Revision: 3.0
20/03/2017
PDF

Project Resources

 

Archive

Find past versions of documents here

Downloads
Room Data Sheet
Revision: 2.0
01/03/2016
PDF
Room Layout Sheet
Revision: 2.0
01/03/2016
pdf
Room Data Sheet
Revision: 1.0
08/07/2007
PDF
Room Layout Sheet
Revision: 1.0
15/07/2005
pdf

Retired Standard Components

Retired Standard Components

Webpage