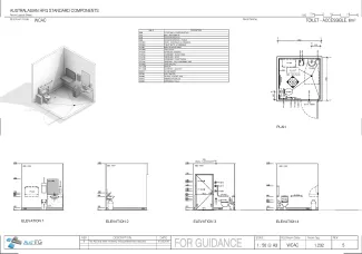
Toilet - Accessible, 6m2

WCAC

Revision: 
5.0
Date published: 
01/03/2016

A toilet and handbasin for use by those with diabilities, with or without assistance. The room shall comply with AS 1428. Baby change facilities may also be located in this room. If the Accessible Toilet is located in a patient care area the patient/nurse call and emergency call points should be included.

This Standard Component has been reviewed, redocumented and reissued. These changes include findings from recent projects and post occupancy evaluations. In most cases, the changes are significant.

Room Data Sheet

Downloads
Room Data Sheet
Revision: 4.0
01/03/2016
PDF

Room Layout Sheet

Downloads
Room Layout Sheet
Revision: 5.0
01/03/2016
PDF

Project Resources

 

Archive

Find past versions of documents here

Downloads
Room Data Sheet
Revision: 5.0
20/03/2017
PDF
Room Layout Sheet
Revision: 6.0
20/03/2017
pdf
Room Data Sheet
Revision: 4.0
01/03/2016
PDF
Room Layout Sheet
Revision: 5.0
01/03/2016
pdf
Room Data Sheet
Revision: 3.0
27/03/2009
PDF
Room Layout Sheet
Revision: 4.0
10/03/2009
pdf

Retired Standard Components

Retired Standard Components

Webpage