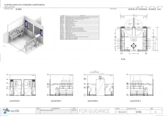
Scrub Up/ Gowning - Shared, 10m2 (RETIRED)

SCRBS

Revision: 
4.0
Date published: 
24/03/2017

This standard component has been retired.

This standard component has been retired.

Room Data Sheet

Downloads
Room Data Sheet
Revision: 4.0
20/03/2017
PDF

Room Layout Sheet

Downloads
Room Layout Sheet
Revision: 4.0
20/03/2017
PDF

Project Resources

 

Archive

Find past versions of documents here

Downloads

Retired Standard Components

Retired Standard Components

Webpage