Reporting Room

REPR

Revision: 
2.0
Date published: 
15/05/2025

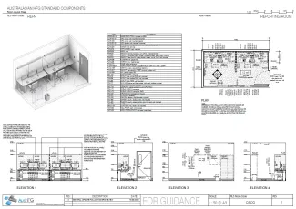
The Reporting Room provides two workspaces with high-performance computers for reviewing of and reporting on patient images from various medical imaging modalities.

Room Data Sheet

Downloads
Room Data Sheet
Revision: 2.0
15/05/2025
PDF

Room Layout Sheet

Downloads
Room Layout Sheet
Revision: 2.0
15/05/2025
PDF

Project Resources

 

Archive

Find past versions of documents here

Downloads
Room Data Sheet
Revision: 1.0
29/05/2019
PDF
Room Layout Sheet
Revision: 1.0
29/05/2019
pdf

Retired Standard Components

Retired Standard Components

Webpage