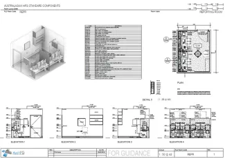
Reporting Room
REPR
Revision:
1.0
Date published:
29/05/2019
Room within a Clinical or Diagnostic Unit for reviewing and reporting of computerised patient imaging/PACS images. Film images may also be viewed from time to time.
Room Data Sheet
Room Layout Sheet
Downloads

Archive
Find past versions of documents here
Retired Standard Components
Retired Standard Components