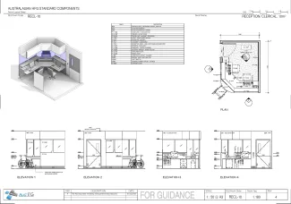
Reception/ Clerical, 10m2

RECL-10

Revision: 
4.0
Date published: 
01/03/2016

A reception area where visitors to a Unit can be received and immediately directed to their destination or a waiting area. The reception area also act as an administrative base providing for the co-ordination of computer entry and making/receivng telephone calls etc. It may also control access to a Unit.
 

This Standard Component has been reviewed, redocumented and reissued. These changes include findings from recent projects and post occupancy evaluations. In most cases, the changes are significant.

Room Data Sheet

Downloads
Room Data Sheet
Revision: 4.0
01/03/2016
PDF

Room Layout Sheet

Downloads
Room Layout Sheet
Revision: 4.0
01/03/2016
PDF

Project Resources

 

Archive

Find past versions of documents here

Downloads
Room Data Sheet
Revision: 5.0
20/03/2017
PDF
Room Layout Sheet
Revision: 5.0
20/03/2017
pdf
Room Data Sheet
Revision: 4.0
01/03/2016
PDF
Room Layout Sheet
Revision: 4.0
01/03/2016
pdf
Room Data Sheet
Revision: 3.0
26/03/2009
PDF
Room Layout Sheet
Revision: 3.0
10/03/2009
pdf

Retired Standard Components

Retired Standard Components

Webpage