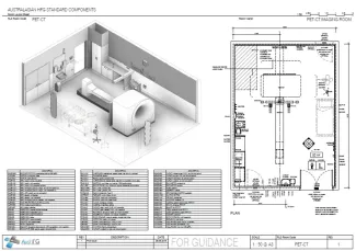
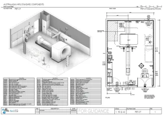
PET-CT Imaging Room
PET-CT
Revision:
1.0
Date published:
29/05/2019
Room for Positron Emission Tomography-Computed Tomography (PET/CT) scanning procedures with a Control Room located nearby and PET/CT Equipment Room.
Room Data Sheet
Room Layout Sheet
Downloads

Archive
Find past versions of documents here
Retired Standard Components
Retired Standard Components