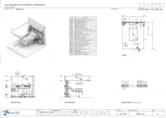
Patient Bay - Holding, 9m2

PBTR-H-9

Revision: 
6.0
Date published: 
24/03/2017

A patient bed bay used for holding of patients prior to procedures, observation of patients following procedures or for assessment and treatment of patients. The patient bay will be located nearby to a handwashing basin. The patient bay may be reduced to a minimum of 6m2 to accomodate a recliner chair instead of a patient bed.
 

This Standard Component has been reviewed, redocumented and reissued. These changes include findings from recent projects and post occupancy evaluations. In most cases, the changes are significant.

Room Data Sheet

Downloads
Room Data Sheet
Revision: 5.0
20/03/2017
PDF

Room Layout Sheet

Downloads
Room Layout Sheet
Revision: 6.0
20/03/2017
PDF

Project Resources

 

Archive

Find past versions of documents here

Downloads
Room Data Sheet
Revision: 5.0
20/03/2017
PDF
Room Layout Sheet
Revision: 6.0
20/03/2017
pdf
Room Data Sheet
Revision: 4.0
01/03/2016
PDF
Room Layout Sheet
Revision: 5.0
01/03/2016
pdf
Room Data Sheet
Revision: 3.0
20/03/2009
PDF
Room Layout Sheet
Revision: 4.0
10/03/2009
pdf

Retired Standard Components

Retired Standard Components

Webpage