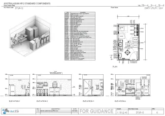
Dirty Utility, 12m2

DTUR-12

Revision: 
6.0
Date published: 
20/01/2021

The Dirty Utility, 12m² provides a space for the decontamination and storage of bedpans, urinals and bowls, testing and disposal of patient specimens, disposal of clinical and other wastes, cleaning and holding of used equipment for collection, and holding of soiled linen for collection. Note: due to the availability of washers that do not require pre-handling of items a spray hose and flushing rim sink are no longer included in the Dirty Utility, 12m² fit out.

Room Data Sheet

Downloads
Room Data Sheet
Revision: 6.0
20/01/2021
PDF

Room Layout Sheet

Downloads
Room Layout Sheet
Revision: 6.0
20/01/2021
PDF

Project Resources

 

Archive

Find past versions of documents here

Downloads
Room Data Sheet
Revision: 5.0
20/03/2017
PDF
Room Layout Sheet
Revision: 5.0
20/03/2017
pdf
Room Data Sheet
Revision: 4.0
01/03/2016
PDF
Room Layout Sheet
Revision: 4.0
01/03/2016
pdf
Room Data Sheet
Revision: 3.0
01/04/2009
PDF
Room Layout Sheet
Revision: 3.0
10/12/2008
pdf

Retired Standard Components

Retired Standard Components

Webpage