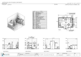
Clean-Up Room - Shared, 10m2

CLUP-10

Date published: 
04/07/2018

The Clean-Up Room - Shared is used for rinsing and cleaning of medical equipment used in the Operating Rooms or Procedure Rooms.

Room Data Sheet

Downloads
Room Data Sheet
Revision: 1.0
04/07/2018
PDF

Room Layout Sheet

Downloads
Room Layout Sheet
Revision: 1.0
04/07/2018
PDF

Project Resources

 

Archive

Find past versions of documents here

Downloads
Room Data Sheet
Revision: 1.0
04/07/2018
PDF
Room Layout Sheet
Revision: 1.0
04/07/2018
pdf

Retired Standard Components

Retired Standard Components

Webpage