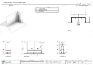
Bay - Mobile Equipment, 4m2

BMEQ-4

Revision: 
4.0
Date published: 
01/03/2016

An open storage bay for one or more items of mobile equipment in frequent use which may include wheelchairs, mobile scales, commode chairs, patient lifting devices or other mobile equipment.
 

This Standard Component has been reviewed, redocumented and reissued. These changes include findings from recent projects and post occupancy evaluations. In most cases, the changes are significant.

Room Data Sheet

Downloads
Room Data Sheet
Revision: 4.0
01/03/2016
PDF

Room Layout Sheet

Downloads
Room Layout Sheet
Revision: 4.0
01/03/2016
PDF

Project Resources

 

Archive

Find past versions of documents here

Downloads
Room Data Sheet
Revision: 5.0
20/03/2017
PDF
Room Layout Sheet
Revision: 5.0
20/03/2017
pdf
Room Data Sheet
Revision: 4.0
01/03/2016
PDF
Room Layout Sheet
Revision: 4.0
01/03/2016
pdf
Room Data Sheet
Revision: 3.0
01/04/2009
PDF
Room Layout Sheet
Revision: 3.0
10/12/2008
pdf

Retired Standard Components

Retired Standard Components

Webpage