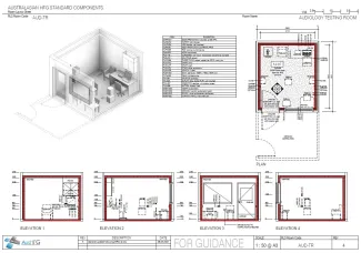
Audiology Testing Room

AUD-TR

Revision: 
4.0
Date published: 
27/04/2021

The Audiology Testing Room provides an acoustically treated, soundproof space for clinical assessments to be carried out under controlled conditions.

Testing Rooms may be modular proprietary items or constructed in situ and are generally designed as rooms within rooms in order to isolate the Testing Room from the rest
of the building as much as possible. All designs should be reviewed and confirmed by an acoustic design expert.

Additional Consideration:

  • The Audiology Testing Room currently indicates a layout (with an adjacent control room) that is suitable for paediatric testing. Layouts will vary to suit service requirements and the provided layout will need to be altered to suit services for older children and adults.
  • The audiometric booth is to be ventilated and connected to air-conditioning, power and data.
  • Noise from mechanical services is to be minimised with air-conditioning to be designed for low noise operation to meet ambient noise requirements for testing.
  • The floor of the Treatment Room should be flush with the floor of the Control Room, or the adjacent corridor where a Control Room is not provided, for access by patients in wheelchairs.

Room Data Sheet

Downloads
Room Data Sheet
Revision: 4.0
27/04/2021
PDF

Room Layout Sheet

Downloads
Room Layout Sheet
Revision: 4.0
27/04/2021
PDF

Project Resources

 

Archive

Find past versions of documents here

Downloads
Room Data Sheet
Revision: 3.0
20/03/2017
PDF
Room Layout Sheet
Revision: 3.0
20/03/2017
pdf
Room Data Sheet
Revision: 2.0
01/03/2016
PDF
Room Layout Sheet
Revision: 2.0
01/03/2016
pdf
Room Data Sheet
Revision: 1.0
04/08/2005
PDF
Room Layout Sheet
Revision: 1.0
13/07/2005
pdf

Retired Standard Components

Retired Standard Components

Webpage