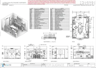
Anaesthetic Preparation Room, 16m²

ANAE-16

Revision: 
1.0
Date published: 
02/07/2018

The Anaesthetic Preparation Room is for holding patients on mobile beds or trolleys prior to operative procedures.

Room Data Sheet

Downloads
Room Data Sheet
Revision: 1.0
02/07/2018
PDF

Room Layout Sheet

Downloads
Room Layout Sheet
Revision: 1.0
02/07/2018
PDF

Project Resources

 

Archive

Find past versions of documents here

Downloads
Room Data Sheet
Revision: 1.0
02/07/2018
PDF
Room Layout Sheet
Revision: 1.0
02/07/2018
pdf

Retired Standard Components

Retired Standard Components

Webpage