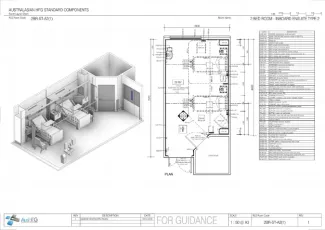
2 Bed Room - Inboard Ensuite, Type 2
2BR-ST-A2
Revision:
1
Date published:
05/04/2018
A 2 Bed Room will accommodate two patients for the delivery of a range of clinical care and treatment.
Room Data Sheet
Room Layout Sheet
Downloads

Archive
Find past versions of documents here
Downloads
Retired Standard Components
Retired Standard Components