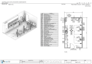
Treatment Room - Hand Therapy / Splinting

TRMT-HTS

Revision: 
1.0
Date published: 
27/04/2021

The Treatment Room - Hand Therapy/Splinting, provides a controlled environment, privacy and facilities for carrying out treatment and rehabilitation performed by an occupational therapist or physiotherapist with patients that suffer from conditions affecting the hands and upper limbs, such as wounds, scars, burns, fractures or amputations.

Additional Considerations:

  • A second door may be required for staff safety and security; the location of the second door will be dependent on the availability an appropriate area to egress.
  • Depending on operational model, the hand therapy treatment room may be an open area adjoining a space with other allied health treatment bays. If open, floor boxes may be required for power to height adjustable tables.
  • Printing facilities to be shared within the overall department.
  • Refrigeration requirements for some materials in warmer climates may need to be considered.

Room Data Sheet

Downloads
Room Data Sheet
Revision: 1.0
27/04/2021
PDF

Room Layout Sheet

Downloads
Room Layout Sheet
Revision: 1.0
27/04/2021
PDF

Project Resources

 

Archive

Find past versions of documents here

Downloads

Retired Standard Components

Retired Standard Components

Webpage