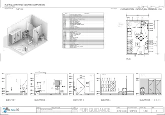
Change Room - Patient (Male/Female), 12m2

CHPT-12

Revision: 
2.0
Date published: 
28/03/2017

Patient change rooms are provided for patients to change into gowns, to store their street clothing and to perform personal ablutions. Change rooms should be divided into male and female areas on a proportional basis and will include change cubicles, toilets, handbasins and lockers for secure storage of personal property.

 

This is a new Standard Component.

Room Data Sheet

Downloads
Room Data Sheet
Revision: 3.0
20/03/2017
PDF

Room Layout Sheet

Downloads
Room Layout Sheet
Revision: 2.0
20/03/2017
PDF

Project Resources

 

Archive

Find past versions of documents here

Downloads
Room Data Sheet
Revision: 2.0
01/03/2016
PDF
Room Layout Sheet
Revision: 1.0
01/03/2016
pdf

Retired Standard Components

Retired Standard Components

Webpage